3227 Jefferson Avenue #3
3227 Jefferson Avenue #3
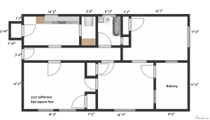
3227 Jefferson Avenue #3, CINCINNATI, OH, 45220Basics
- Date Available: 08/11/26
- Beds-Baths: 2 Bedroom 1 Bathroom
- Bedrooms: 2
- Bathrooms: 1.0
- Area, sq ft: 890.0 sq ft
Description
-
Description:
Jefferson 3227 is located in Cincinnati’s Uptown neighborhood, 3227 Jefferson Avenue is a charming historic six-unit building featuring spacious apartments with private balconies. Inside, you'll find features such as Balcony/Patio, Coin Operated Laundry, Gas Range, Hardwood Flooring, with more amenities designed for your comfort.
Show all description
Amenities & Features
- Amenities:


